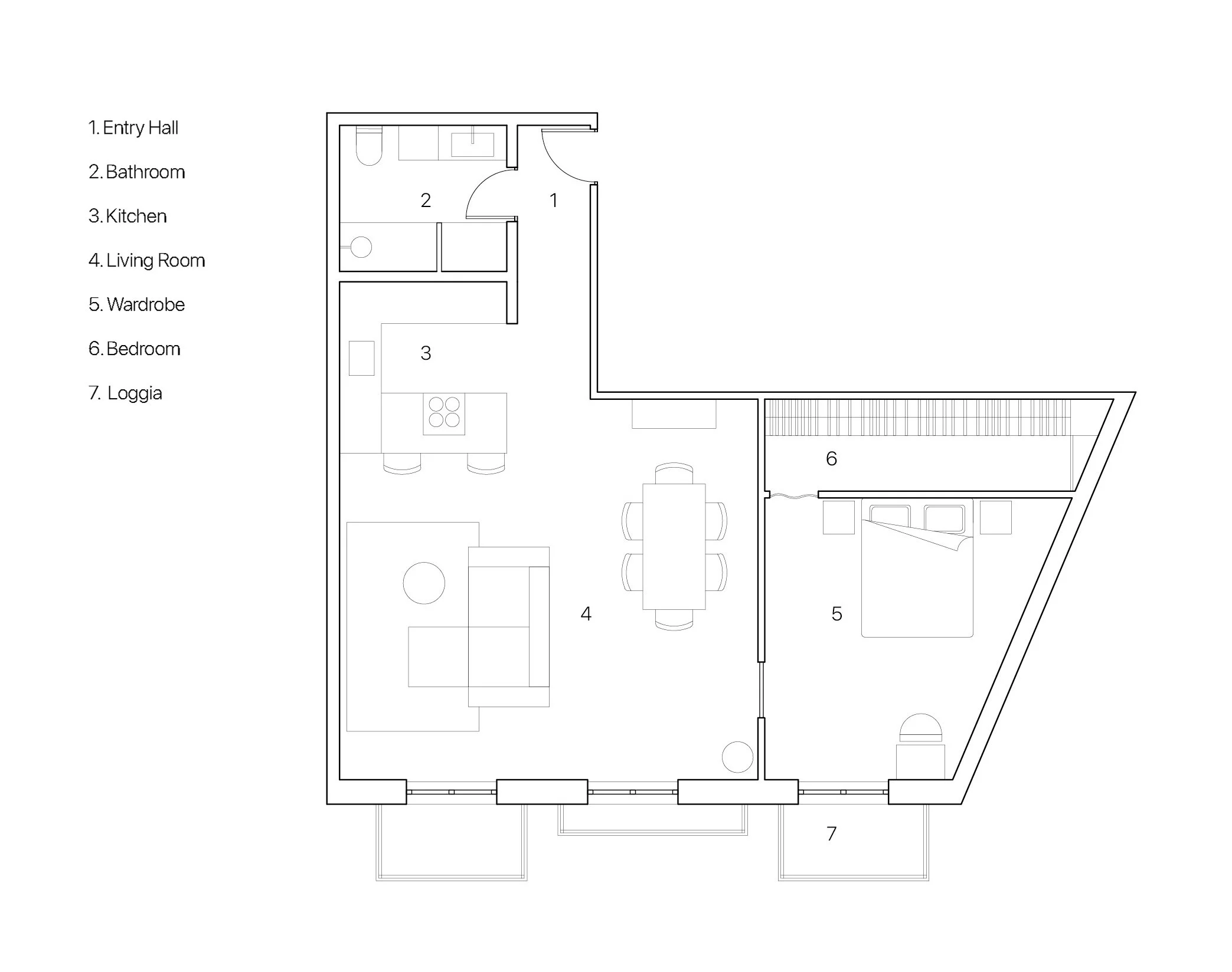
Sculptural Apartment Design

Type: Apartment

Location: Moscow, Russia

Date: 2024

Status: Built

Area: 77 m.

Photography: Evgenia Baranova

Reforma in Barcelona

Type: Apartment Renovation

Location: Barcelona, Spain

Date: 2024

Status: Built

Area: 70 m.

Photography: Carlos Feher

Apartment as Medina

Type: Apartment

Location: Moscow, Russia

Date: 2020

Status: Built

Area: 70 m.

Photography: Ivan Erofeev

Collaborators: Cxema